Réalisation d’un permis de construire pour la construction d’une piscine et d’un poolhouse à Mâcon

Une envie de créer un espace extérieur élégant, moderne et chaleureux ? Voici un projet de conception qui risque de vous plaire ! Tisserin Concept Ingénierie a aménagé une piscine creusée et un poolhouse design pour une demeure située à Crêches-sur-Saône à proximité de Mâcon.

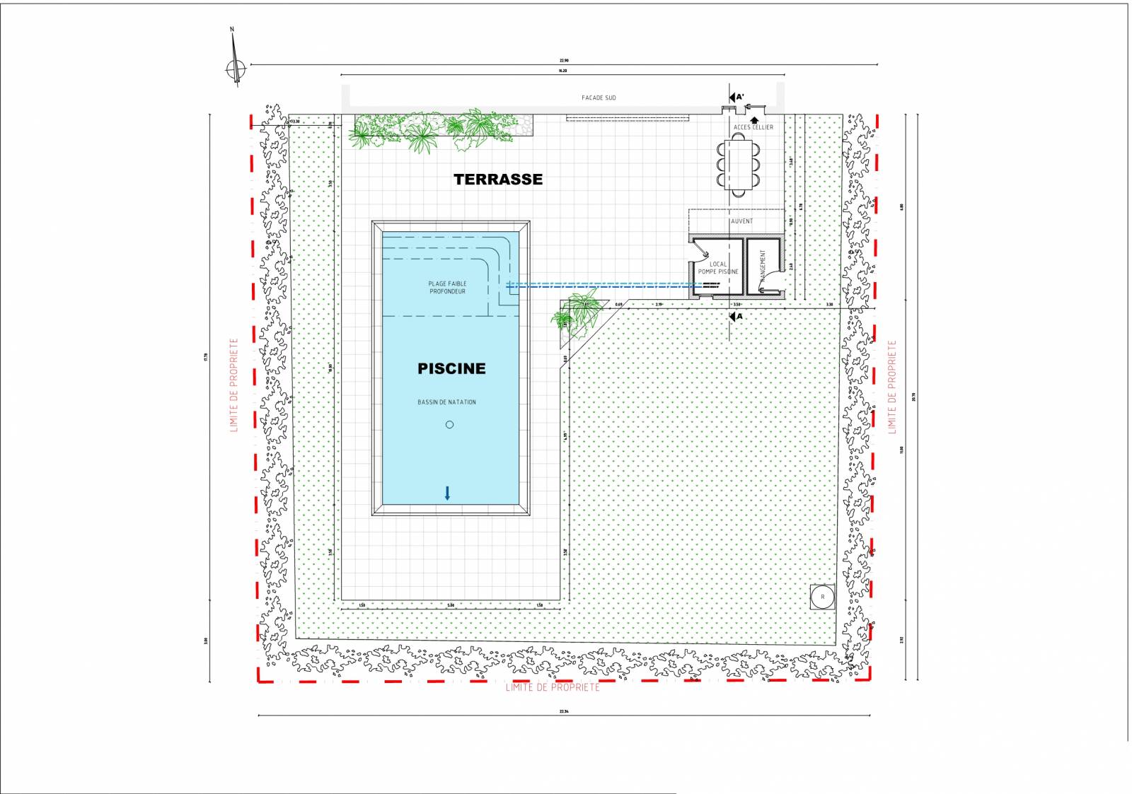
Notre client, occupant la maison déjà construite, nous a contacté pour l’étude d’un aménagement extérieur pour intégrer une piscine et un pool-house dans son jardin à Mâcon. Pour la réalisation de ce projet, notre équipe a élaboré un avant-projet intégrant un plan d’aménagement, des coupes de niveaux et une perspective 3D. Cette dernière est un vrai plus, car elle permet au client de se projeter dans son futur nouvel environnement extérieur.

Pour élaborer cet avant-projet, Tisserin Concept Ingénierie a conçu entièrement le dossier de permis de construire clé en main composé : d’un plan de situation, d’un plan masse, d’un plan des coupes, d’une notice descriptive et d’une insertion paysagère 3D à déposer à la mairie de Mâcon. Le dossier d’urbanisme a été remis au client en 4 jours après la validation de l’avant-projet. Rapidité, qualité et accompagnement sont les maîtres-mots de notre équipe.

Ce projet vous a donné envie d’aménager votre extérieur à Mâcon dans la région Saône-et-Loire  ? Grâce à notre casquette d’architecte d’intérieur et extérieur, Tisserin Concept Ingénierie saura vous conseiller et vous proposer un aménagement suivant vos envies et également suivant les tendances 2022 !

Contactez-nous via notre formulaire de contact en nous expliquant votre idée, car tout projet mérite réalisation.

Nous écrire
Les champs indiqués par un astérisque (*) sont obligatoires
À découvrir
Réalisation d'une insertion paysagère pour un permis de construire d'une maison à Lyon

Réalisation d’un dossier de permis de construire de deux maisons mitoyennes par un architecte à Lyon

Tisserin Concept Ingénierie a été sollicité pour la conception et la réalisation d’un dossier de permis de construire complet avec l'obligation d'une valida...
En savoir plus
Réalisation d'une insertion paysagère pour un permis de construire d'une maison à Lyon

Réalisation d’un dossier de permis de construire de deux maisons mitoyennes par un architecte à Lyon

Tisserin Concept Ingénierie a été sollicité pour la conception et la réalisation d’un dossier de permis de construire complet avec l'obligation d'une valida...
En savoir plus