Réalisation d’un plan d’état des lieux et d’aménagement d’un appartement à Lyon

Tisserin Concept Ingénierie spécialiste en création d'espace et d'aménagement vous présente la réalisation d'un dossier complet d'un agencement pour un appartement se situant près de Lyon.

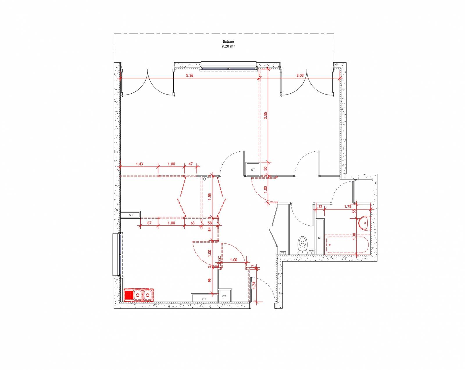
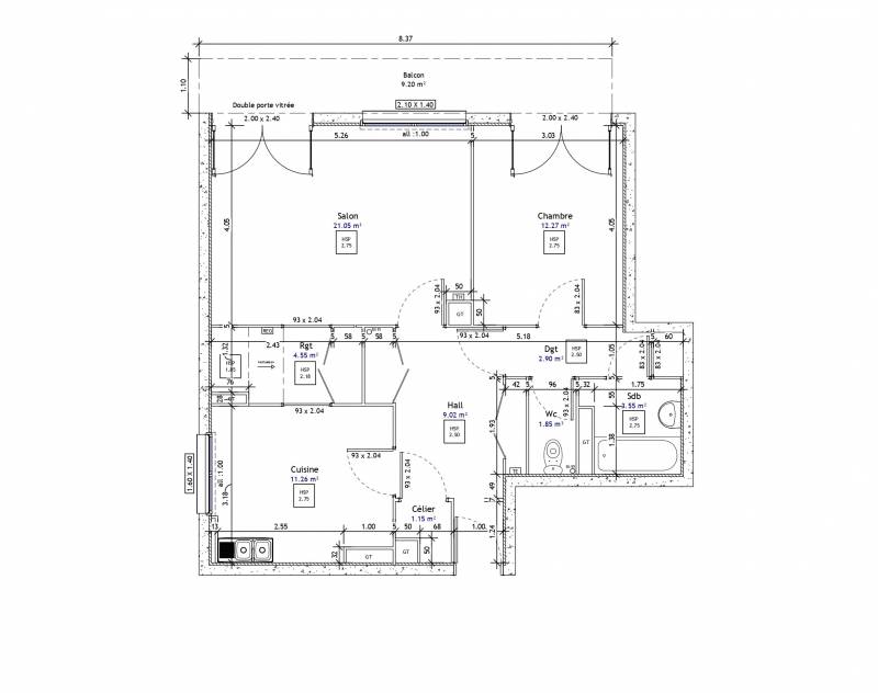
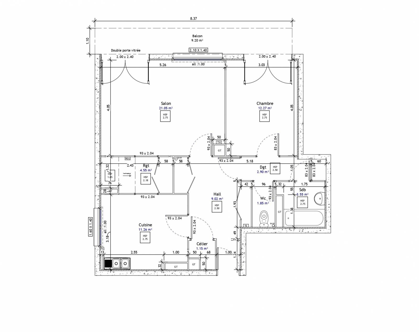
La première étape dans la réalisation d’un projet d’aménagement et de rénovation est un relevé de l’existant. En effet, un plan d’état des lieux est indispensable pour concevoir le futur projet.

Un plan d’état des lieux permet de vérifier les côtes, les surfaces, les niveaux ainsi que les réseaux existants. Un métré sur place est indispensable pour vérifier toutes ces étapes.

Dans cet appartement se situant à Lyon, notre architecte d’intérieur à réaliser un relevé de l’existant pour pouvoir ensuite concevoir un plan d’état des lieux.

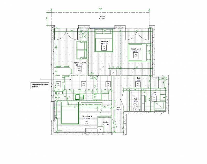
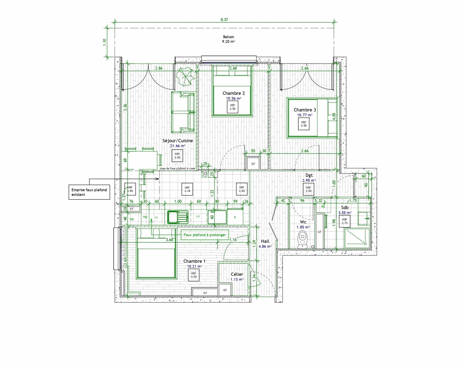
Notre objectif sur ce bien est de concevoir un aménagement permettant de transformer cet appartement de type T2 en type T4. Nous avons donc réalisé un dossier complet comprenant les documents suivants :

- Un plan d’état des lieux

- Un plan d’aménagement d’intérieur

- Un plan de démolition

- Un plan d’électricité de l’existant et du projet

- Un plan de plomberie de l’existant et du projet

- Notice descriptive type DPGF avec les quantitatifs

- Des visuels du projet

Ce dossier permettra à notre client de chiffrer le projet de rénovation et d’aménagement se situant à Lyon mais aussi de prendre en compte toutes les informations essentielles à sa réalisation. Pour plus d'information sur cette prestation, je vous laisse regarder les détails de notre Pack Rénov'

Tisserin Concept Ingénierie se déplace à Lyon et à travers la région Rhône Alpes pour vous aider à concevoir et réaliser tous types de projet immobilier. Vous êtes un professionnel de la rénovation et vous avez besoin d’un dossier complet d'état des lieux et d'aménagement pour vos artisans et clients ? Notre équipe vous fournira son expertise à des prix toujours abordables. Contactez-nous ! 

Nous écrire
Les champs indiqués par un astérisque (*) sont obligatoires
À découvrir
Visuel 3D d'une rénovation d'une chambre parentale à Lyon

Étude architecturale : Aménagement et décoration d'une chambre parentale et d'une salle de bain par un architecte d'intérieur à Lyon

L’équipe de Tisserin Concept Ingénierie a été contacté pour un projet de rénovation intérieure à Caluire, en région Lyonnaise (69), avec comme objectif l'agen...
En savoir plus
Réalisation d'un visuel 3D d'un salon en rénovation d'une maison à Vienne

Rénovation d'une ancienne maison de village en maison contemporaine près de Vienne

Propriétaire d’une maison individuelle de 1970 de 160m2 à Vienne, la famille C. a contacté Tisserin Concept Ingénierie car leur bâtisse commençait à se détéri...
En savoir plus
Photographie d'un centre de formation en rénovation à Lyon
60K
2 mois
325m²

Aménagement d'un espace de bureaux professionnels chaleureux et fonctionnels, en centre de formation à Lyon 9 (Vaise)

Tisserin Concept Ingénierie a repensé un local à Lyon 9 pour un organisme de formation, créant open spaces, salles de formation, espace détente et rest...
En savoir plus