Vous envisagez une extension ou une surélévation d’une maison existante avec des modifications de façade et de toiture ? La préparation d’un permis de construire clé en main ou d’une déclaration préalable de travaux est alors nécessaire.
Si vous avez des doutes sur le type d’autorisation d’urbanisme pour vos travaux, vous pouvez consulter notre article « Permis de construire ou déclaration préalable de travaux ? »
Pour rappel, un permis de construire est un document administratif qui vous permet de réaliser des travaux de construction, de transformation, de démolition ou de surélévation de votre bâtiment. Il vous sera délivré par votre mairie une fois que vous avez présenté un dossier complet et accepté par le service urbanisme.
Pour préparer votre dossier d’urbanisme, vous pouvez vous adresser à un architecte DPLG diplômé et inscrit à l’ordre des architectes. Ce professionnel aura pour mission de réaliser des plans, de déterminer les modifications à apporter à votre maison et de rédiger le dossier de demande de permis de construire avec tous les documents nécessaires.
L’architecte pourra également vous conseiller sur les matériaux à utiliser, les règles d’urbanisme à respecter et les différentes procédures à suivre pour obtenir le permis de construire. Il vous accompagnera également lors des visites et des réunions avec le service urbanisme et vous aidera à prendre les bonnes décisions.
Pour savoir si votre dossier nécessite un architecte DPLG vous pouvez consulter notre article « Ai-je besoin d’un architecte pour mon permis de construire ou ma déclaration préalable de travaux ? »
Une fois que vous aurez obtenu votre permis de construire, vous serez en mesure de lancer les travaux de construction et de profiter des avantages d’une maison modernisée et adaptée à vos besoins. Alors n’hésitez pas à nous contacter pour réaliser votre permis de construire ou déclaration préalable de travaux et réussir votre projet !
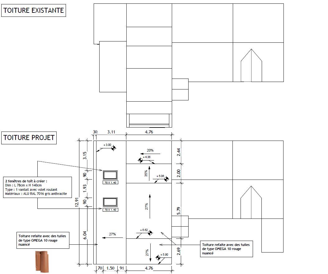
Ci-dessous un exemple d’un permis de construire pour une extension de maison sur la commune de Bron près de Lyon réalisé par l’équipe Tisserin :PC1 - Plan de situation


PC5 - Plan des façades et des toitures





PC6 - Insertion paysagère
PC7/PC8 - Photographies